Gesamtwürdigung

Die Projektverfassenden des Projektbeitrags haben einen auf vielen Ebenen sorgfältig ausgearbeiteten und qualitätsvollen Entwurf gestaltet, was sich vor allem in den dargestellten Grundrissen und der Strukturierung der drei unterschiedlich konzipierten Gebäudetypen zeigt. Die Idee der Adressbildung der einzelnen Häuser über zentrale Zonen als innenliegende Strassen oder Foyers wird ebenso gewürdigt wie die klare Haltung zu einer breiten Nutzungsverteilung und der Unterstützung von Diversität sowie Nachhaltigkeit. Mit der Entwicklung von Gebäudetypologien schaffen sie einen spannenden Ansatz zur Differenzierung der einzelnen Volumina, die jedoch zu wenig spezifisch ausgestaltet sind. Grundlegend fehlen dem Projekt innovative Ansätze und Gestaltungsideen, die über die aus dem Richtprojekt gewonnenen Erkenntnisse hinausreichen und einen wesentlichen Beitrag zur Weiterentwicklung des geplanten Stadtbausteins «Wankdorfcity 3» leisten könnten. Richtprojekt gewonnenen Erkenntnisse hinausreichen und einen wesentlichen Beitrag zu dem neu geplanten Stadtteil «Wankdorfcity 3» leisten könnten.
Symphony 1

Projektbeschrieb

Städtebau und Architektur

Die Projekteingabe «Symphony» basiert auf der Haltung, der Komplexität von Städtebau und gemeinschaftlichem Leben im 21. Jahrhundert in all seiner Widersprüchlichkeit gerecht zu werden und dementsprechend ein Konzept zu entwickeln, das den Bedürfnissen aller Nutzerinnengruppen eine entsprechende Repräsentation innerhalb des neuen Stadtbausteins von Wankdorfcity 3 zuzuordnen vermag. Die Projektverfassenden orientieren sich dabei am Richtprojekt und übernehmen in grossen Teilen die vorgeschlagenen Volumina zur Gliederung der Baumasse und zur Akzentuierung der Freiräume. Sie streben eine maximale Durchmischung der Nutzungsprogramme zur Belebung und Aktivierung mittels zweier Strategien an. Eine erste Strategie ist die Gestaltung von zwei ebenbürtigen Stadtebenen. In der Weiterentwicklung des Richtprojekts wird auf der unteren Stadtebene insbesondere auf die klare und grosszügige Adressbildung der einzelnen Gebäude und auf durchmischte Nutzungen fokussiert. Zentrales Element der ersten Stadtebene sind die Erschliessungskerne für Gewerbe und Wohnen mit den entsprechenden öffentlichen Funktionen wie Retail- und Gastroflächen. Dabei bilden die Foyer-Zonen ein wesentliches Element, sie sollen als Übergangsbereiche eine Durchwebung unterschiedlicher Nutzerinnengruppen gewährleisten. Velo- und Abstellräume sind ebenfalls auf dieser Stadtebene angeordnet, um die Nutzung und Funktionalität des Wohnens auf der oberen Stadtebene zu stärken. Die zweite Stadtebene im achten Obergeschoss dient der Wohnnutzung und zugleich einem halböffentlichen Programm mit Kita und unterschiedlichen Gemeinschaftsräumen und -flächen. Diese zweite Ebene ist als eine Art Quartierstrasse/-platz zu verstehen, auf der/dem sich das gemeinschaftliche Leben entfalten kann. Offen bleibt allerdings, wie genau die gemeinsamen Erschliessungskerne und -zonen für die öffentlichen und halböffentlichen Flächen im Zusammenspiel mit den Wohnungsflächen und deren privaten Erschliessungsbereichen ausdifferenziert werden könnten. Mit dem Konzept der zwei Stadtebenen soll der Komplexität und Überlagerung zeitgenössischen Lebens Rechnung getragen werden. Es soll eine Urbanität entstehen, die Arbeiten, Wohnen und alle Formen von Freizeitgestaltungen umfasst, die über sämtliche Tageszeiten hinweg von der Nähe der Funktionen profitiert und die die Menschen, auf unterschiedlichste Lebensrhythmen eingehend, direkt anspricht. Ein spannendes Gedankenspiel, bei dem jedoch in der detaillierten Betrachtung viele Fragen unbeantwortet bleiben, angefangen beispielsweise bei der betrieblichen Umsetzung. Die zweite Strategie des Projektvorschlages fokussiert auf eine optimale Planung eines zeitgemässen Stadtbausteins unter den gegebenen Voraussetzungen einer gemeinsamen und kooperativen Arbeitsweise von verschiedenen Autorinnen und Autoren. Auf dieser Überlegung basiert u. a. die Konzeption von drei unterschiedlichen Gebäudetypen. Sie sieht drei unterschiedliche Charakterisierungen mit entsprechender Gebäudestruktur und Nutzungen vor. Es werden drei «Gebäudefamilien» unterschieden, die anhand von definierten Merkmalen unterschiedliche «Charaktere» durch verschiedene Autorinnen und Autoren entwickelt werden können: Die «verträumten Pragmatiker» bauen auf einer flexiblen Raumstruktur auf, die «mutige Realisten» zeichnen sich durch eine effiziente Erschliessung mit mittig ausgerichtetem Kern und einem übergeordneten Strukturprinzip aus, die «engagierten Extravaganten» bieten aussenliegende Infrastrukturen und bieten flexible Nutzungsmöglichkeiten. Für die einzelnen Familien werden sogenannte «Steckbriefe» entwickelt und den Baubereichen zugeteilt. Dabei geht es um eine «Familien»-spezifische Zuordnung von Funktionen und Nutzungen und ein sich daraus ableitendes strukturelles Konzept für die einzelnen Gebäude. Dieses Prinzip bildet die DNA des Projektes, es soll die weiteren Entscheidungen und Prozesse leiten, vom statischen System bis zur Materialisierung der einzelnen Häuser, dabei besteht nach Aussage der Projektverfassenden die Herausforderung darin, die Balance zwischen der Vielfalt und Einheitlichkeit der verschiedenen Architekturen zu halten. Grundsätzlich haben die drei Gebäudetypen als Strategie einer Zusammenarbeit verschiedener Planungsteams durchaus Potenzial. In ihrer Diversifizierung verlieren die drei Gebäudetypen jedoch bei einer genauen Betrachtung an Plausibilität, wobei auch die klaren Gegenüberstellungen, welche Nutzerinnengruppen jeweils angesprochen werden sollen, durchaus kontrovers zu diskutieren wären. Das Projekt übernimmt simplifiziert in etwa die bisherigen Absichten des Freiraums und macht lediglich auf den Terrassen und Dachebenen Ergänzungen mit weiteren Pergolastrukturen. Das Projektverfasserteam stellt – was durchaus zulässig war – andere Schwerpunkte zur Diskussion.
Symphony Modellbild

Nutzung und Funktionalität

Die gemeinsamen Stadtebenen-Erschliessung für Wohnen sowie Arbeiten sind aus Sicht des Gremiums wenig alltagstauglich. Dies trotz verbindendem «Foyer» als Übergang zu den öffentlicheren Innennutzungen, welche noch beliebig wirken als Gesamtes. Die zweite Stadtebene auf dem achten Obergeschoss verbindet einen Teil der Gebäude und bietet dicht wirkende, halböffentliche Nutzungen, begrünte Pergolen und Atelierwohnen mit zugehörigen privateren Aussenbereichen. Auch die Dachebene sollen gemeinschaftliche Aufenthaltsqualität bieten – die Ausformulierung sozialräumlicher Qualitäten ist jedoch generell noch wenig ablesbar.
Ansicht Süd 1:500
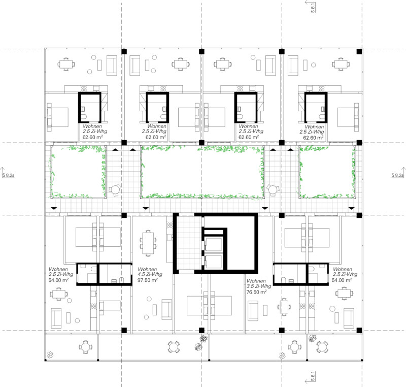
7. Obergeschoss Baubereich B5
Situationsplan Stadtebene

Wirtschaftlichkeit

Eine wirtschaftliche Umsetzung des Projektvorschlags wird grundsätzlich als schwierig erachtet. Einerseits ist die Flächeneffizienz speziell bei den Wohngeschossen teilweise ungenügend. Dies beispielsweise wegen der grosszügigen zweigeschossigen Vorbereiche beim Gebäude Baubereich B5 oder der ­hofähnlichen Typologie beim Gebäude Baubereich B6. Anderseits treiben teure konstruktive Elemente, wie die grosszügigen vorgehängten Balkonschichten oder der geschossweise Mix zwischen Holz- und Stahlbaukonstruktion, die voraussichtlichen Kosten in die Höhe.
9.–13. Obergeschoss Baufeld B6
1. Obergeschoss Baufeld B1

Umwelt

Das Projekt hat sich mit der Problematik der Aussenlärmbelastung nur beschränkt auseinandergesetzt. Es wird konzeptionell und rudimentär aufgezeigt, wie auf die Lärmsituation reagiert werden soll. Das Konzept basiert auf der Idee mit «Durchwohnen» und entsprechender Grundrissanordnung bei den lärmexpo­nierten Baukörpern. Entlang der Bahn sind Loggias vorgesehen. Das gewählte Konzept kann als denkbarer Lösungsansatz eingestuft werden, welcher die Anforderungen in Bezug auf den Lärmschutz berücksichtigt. In der nächsten Projektphase wäre das Konzept stufengerecht weiterzuentwickeln. Die Projektverfassenden schlagen ein statisches System und Materialisierung vor, bei dem einerseits die Materialeigenschaften optimal genutzt werden können (Hybrid mix und Hybrid pur) und andererseits eine konsequente Systemtrennung und damit eine erhöhte Nutzungsflexibilität unter Beachtung der Lebenszyklen der Materialen umgesetzt werden kann. Die begrünten Bereiche sollen zur Biodiversität sowie «Animal aided Design» führen und durch ein gezieltes Wassermanagement sicherstellen. Die Begrünung ist auf verschiedenen Ebenen vorgesehen. Weiter sind Photovoltaik Anlagen an der Fassade und auf dem Dach vorgesehen.
Symphony Visualisierung